

2
Beds
1
Bath
672
Sq. Ft.
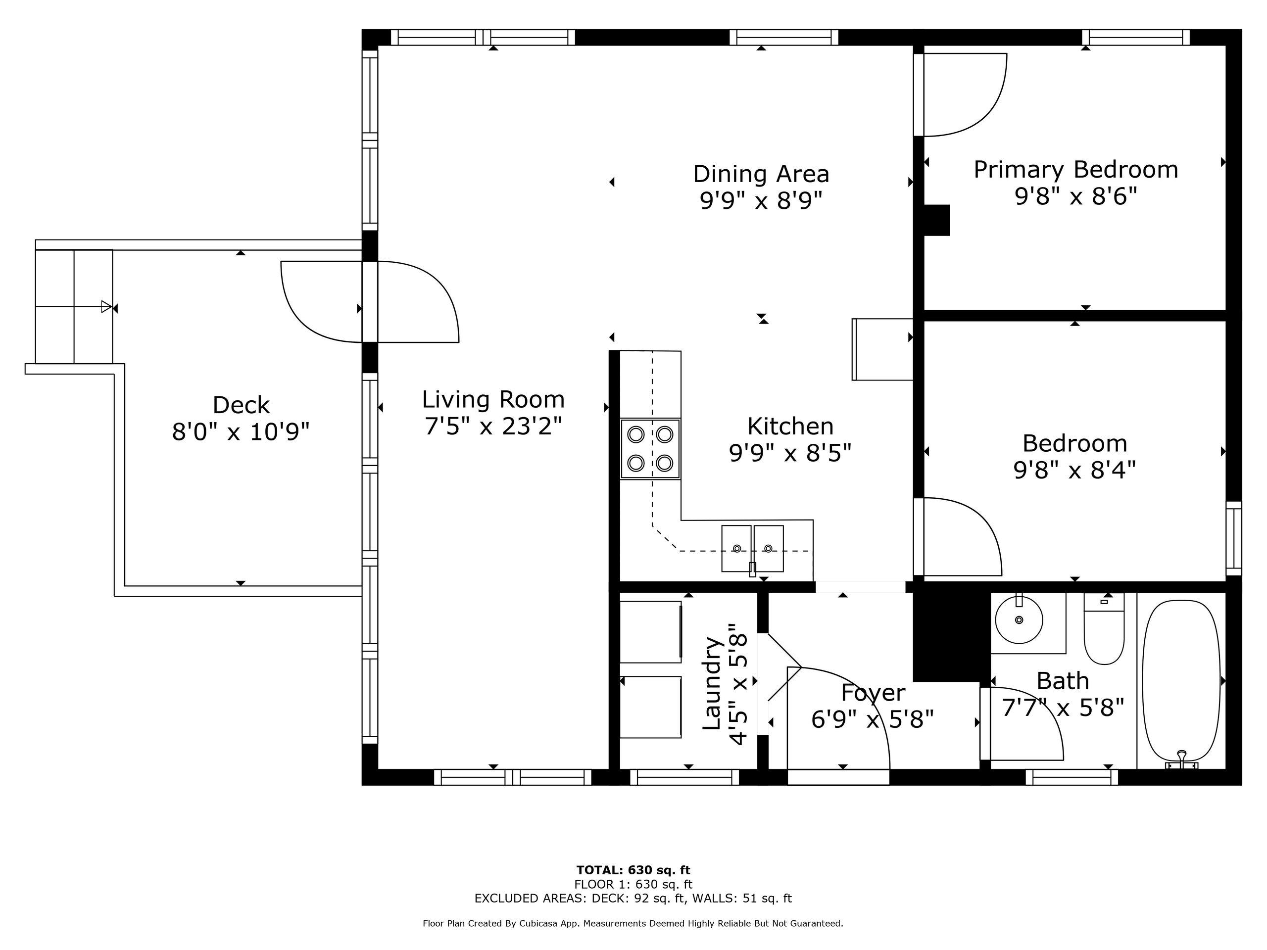
Quaint year-round cottage just steps from Shawano Lake! This cozy 2bed/1bath cottage has all the charm of an Up North retreat! Built in the 1940's and just 630sf, it has stood the test of time with many updates and numerous memories throughout the years. This property has walking/portage access to Shawano Lake through the fire lane easement. It is located within a 10mn drive to the very best shopping, restaurants and entertainment in our area. UTV/Snowmobile trails are all around this property so there is fun to be had all year long!
Inclusions:
Stove/Oven (elect), Refrigerator, Washer/Dryer
Exclusions:
Seller's Personal Property
| Room type | Dimensions | Level |
|---|---|---|
| Bedroom 1 | 9x8 | Main |
| Bedroom 2 | 9x8 | Main |
| Kitchen | 9x8 | Main |
| Living Room | 7x23 | Main |
| Dining Room | 9x8 | Main |
| Other Room | 6x5 | Main |
| Other Room 2 | 4x5 | Main |
Adashun Jones, Inc.
Provided by: Kramer Real Estate & Auction L
Adashun Jones, Inc.
Provided by: Berkshire Hathaway HomeServices Matson Real Estate
Adashun Jones, Inc.
Provided by: Broadway Real Estate
Adashun Jones, Inc.
Provided by: Steinmetz Real Estate Group LLC
Adashun Jones, Inc.
Provided by: Preferred Realty Group
Adashun Jones, Inc.
Provided by: Keller Williams Realty
Adashun Jones, Inc.
Provided by: Keller Williams Realty
Adashun Jones, Inc.
Provided by: First Weber Inc
Adashun Jones, Inc.
Provided by: Shorewest, REALTORS
Adashun Jones, Inc.
Provided by: Resource One Realty, LLC
Enter your email address and we will send you a link to change your password.