

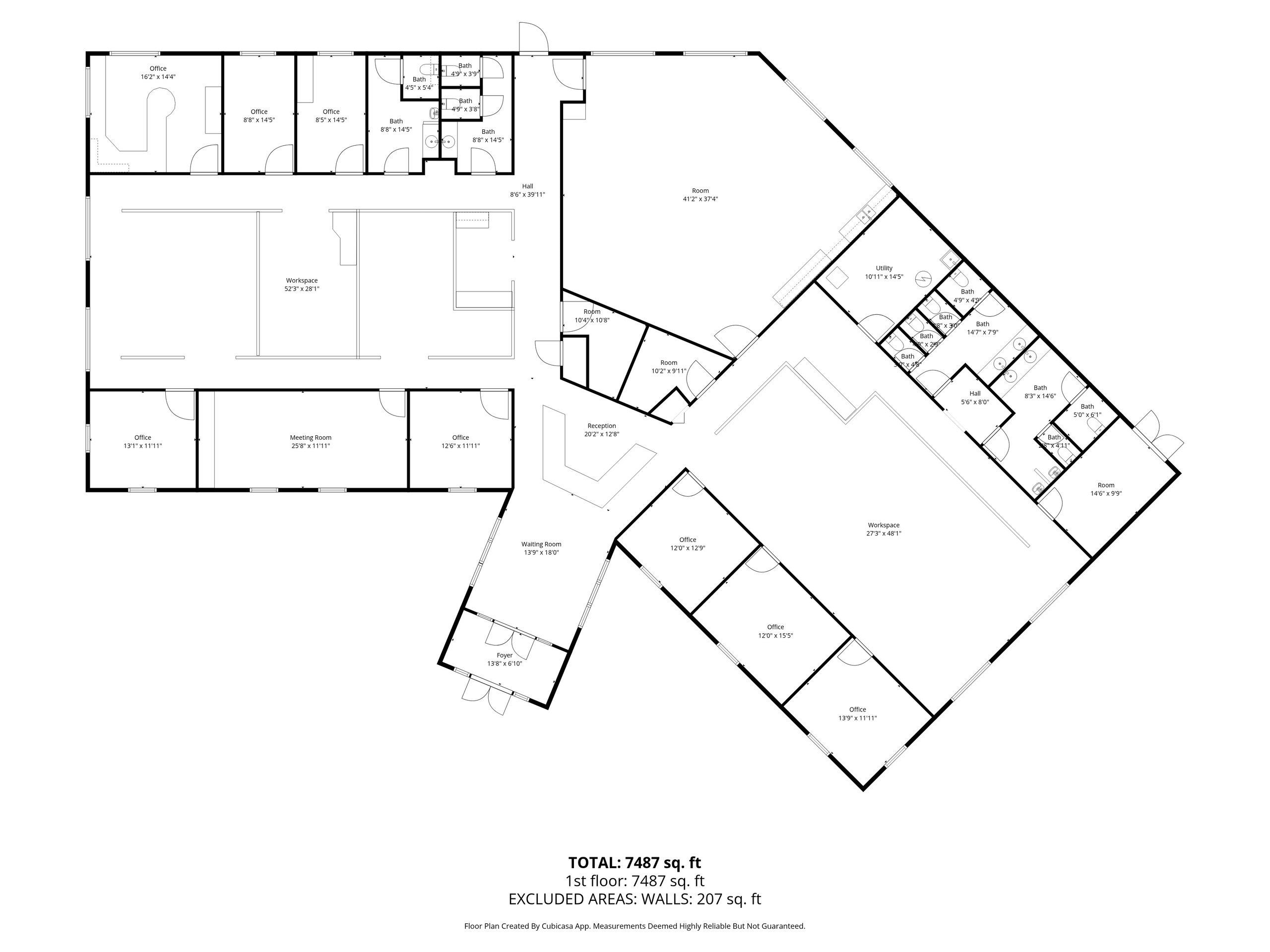
Class A office opportunity in a premier Green Bay location. Set on a 2.6-acre parcel with a wooded backdrop, this property offers a rare blend of professional presence, functionality, and room for future expansion. The site provides ample parking and is well suited for an owner-user or growing organization. The building features a thoughtful layout with two wings offering large open work areas, along with private offices and conference rooms. A welcoming reception area anchors the main entrance while a centrally located collaboration center serves as the hub of the building. Quality construction includes brick exterior, steel roof, and a full fire suppression sprinkler system.
Exclusions:
Seller and tenant personal property, cubicles, furnishings and maintenance items
Get a detailed Home Value Estimate Based on Current Market Trends/Get a Detailed Estimate Based on Current Market Conditions Impacting Your Home's Value