

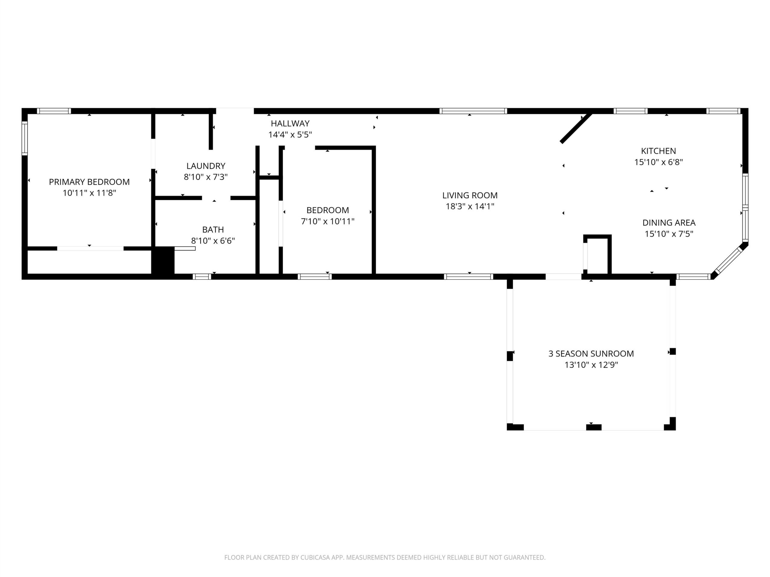
Check out this 2-bedroom, 1-bath single-wide manufactured home built in 1992, set on a beautiful 5 acre tract of land with a scenic rural backdrop. The large open front yard offers views of neighboring ponds, creating a peaceful setting. The property features great wildlife habitat with deer trails throughout and an ideal hunting spot in the back corner, along with a small natural pond near the road for year-round wildlife viewing. An oversized one-car garage and garden shed provide ample storage, and the spacious yard offers room for fencing—perfect for horses or 4-H projects. The home could use some cosmetic updates, but features solid oak, custom-built kitchen cabinets. Relax in the three season sunroom. The home sits on a block and pier foundation with skirting around the exterior.
Inclusions:
Appliances have been included, however seller does not know if they work.
Exclusions:
Sellers Personal Property
Get a detailed Home Value Estimate Based on Current Market Trends/Get a Detailed Estimate Based on Current Market Conditions Impacting Your Home's Value
Adashun Jones, Inc.
Provided by: First Weber, Inc.
Adashun Jones, Inc.
Provided by: Beiser Realty, LLC
Adashun Jones, Inc.
Provided by: Coaction Real Estate, LLC
Adashun Jones, Inc.
Provided by: First Weber, Inc.
Adashun Jones, Inc.
Provided by: Coldwell Banker Real Estate Group
Adashun Jones, Inc.
Provided by: Knaack Realty LLC
Adashun Jones, Inc.
Provided by: Shambeau & Grenlie Real Estate, LLC
Adashun Jones, Inc.
Provided by: The Ellickson Agency, Inc.
Adashun Jones, Inc.
Provided by: Faye Wilson Realty LLC
Adashun Jones, Inc.
Provided by: Coldwell Banker Real Estate Group