

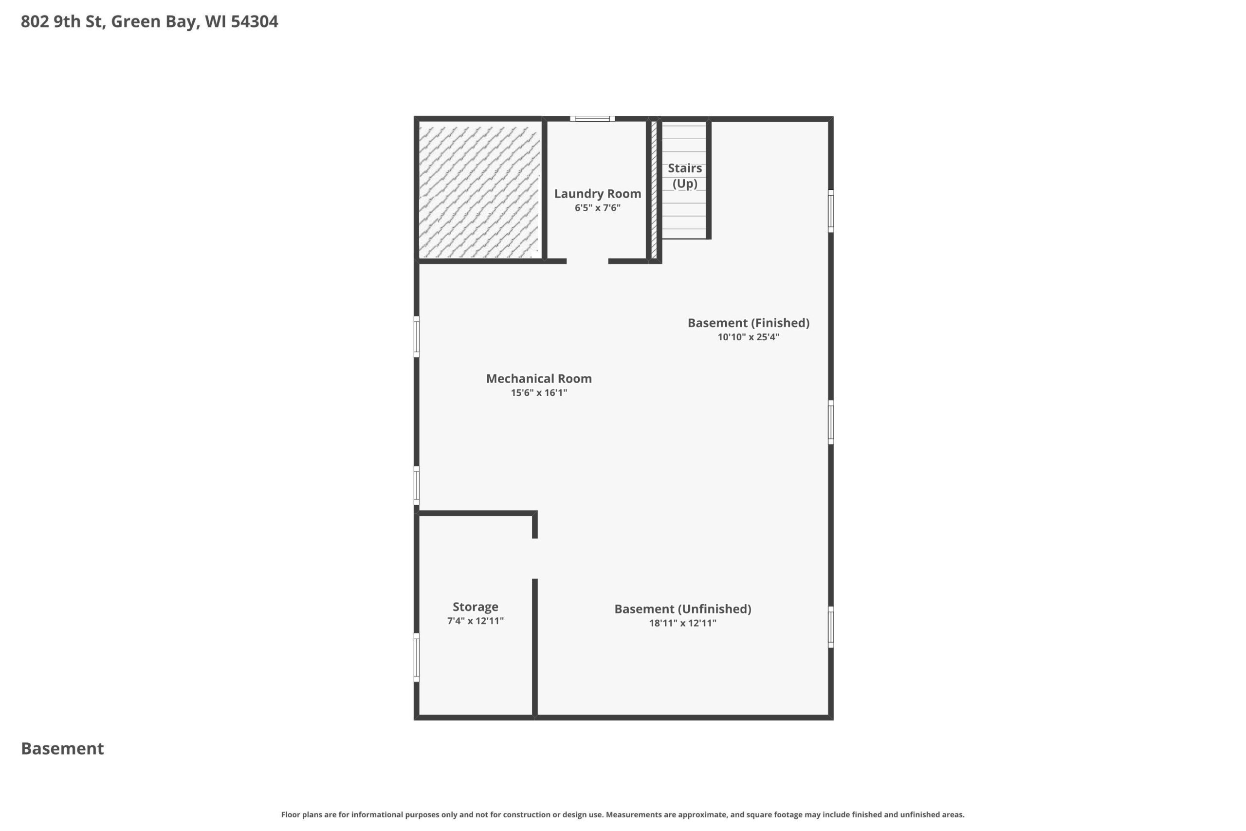
Welcome home! Beautifully updated 3BR/2BA 1.5 story bungalow boasts refinished maple HW floors, original Arts & Crafts woodwork+5-panel doors & fully-equipped kitchen w/suite of ss appliances! Modern shaker cabs/counters & new sink+tap complement the circa 1918 storage & china display w/hand-blown glass. Broad columns adorn the fml dining room w/bay-window seat bumpout & tasteful minimalist chandelier. 2 bedrooms, full bath w/new fixtures & enclosed porch complete the 1st floor. Upper level features a large owner's suite w/walk-in closets & en-suite w/tiled shower. Freshly painted LL great for storage & includes washer+dryer! Fixtures, receptacles, plaster+paint, carpet+LVP, elec. panel upgrades & rubber roof replaced 2026. Seller is listing agent. Portion of siding is of unknown type.
Inclusions:
Stove, Refrigerator, Microwave, Washer and Dryer, Sump Pump
Get a detailed Home Value Estimate Based on Current Market Trends/Get a Detailed Estimate Based on Current Market Conditions Impacting Your Home's Value
Adashun Jones, Inc.
Provided by: Red Key Real Estate, Inc.
Adashun Jones, Inc.
Provided by: Keller Williams Green Bay
Adashun Jones, Inc.
Provided by: Keller Williams Green Bay
Adashun Jones, Inc.
Provided by: Resource One Realty, LLC
Adashun Jones, Inc.
Provided by: Todd Wiese Homeselling System, Inc.
Adashun Jones, Inc.
Provided by: Shorewest, Realtors
Adashun Jones, Inc.
Provided by: Coldwell Banker Real Estate Group
Adashun Jones, Inc.
Provided by: AXEN Realty, LLC
Adashun Jones, Inc.
Provided by: EXP Realty LLC
Adashun Jones, Inc.
Provided by: NextHome Select Realty