

2
Beds
2
Bath
1,335
Sq. Ft.
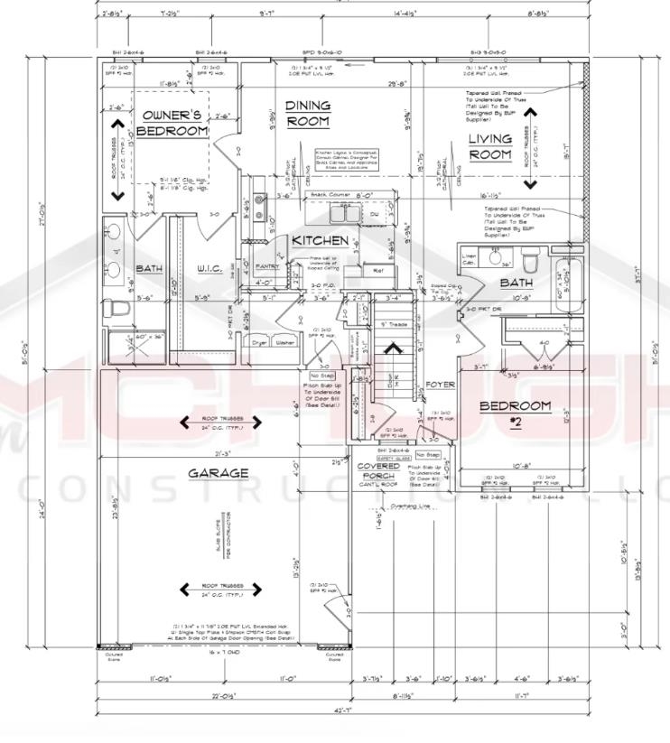
Welcome home from Tom McHugh Construction! This home is under construction!!! The 1335-PA plan from our Palm collection with a zero entry from all access points, 2 bedroom (split), 2 full bath ranch design. Standard features include insulated garage door, fiberglass exterior doors, solid poplar 2 panel interior doors, LVP throughout the main floor, 1 egress window, central AC, basement stubbed for a future bath. Photo is computer generated. Full driveway, final streets are already installed.
Inclusions:
Dishwasher and Microwave
| Room type | Dimensions | Level |
|---|---|---|
| Bedroom 1 | 12x13 | Main |
| Bedroom 2 | 12x10 | Main |
| Kitchen | 10x14 | Main |
| Living Room | 16x16 | Main |
| Dining Room | 10x14 | Main |
| Other Room | 5x6 | Main |
Adashun Jones, Inc.
Provided by: Keller Williams Fox Cities
Adashun Jones, Inc.
Provided by: Coldwell Banker Real Estate Group
Adashun Jones, Inc.
Provided by: Score Realty Group, LLC
Adashun Jones, Inc.
Provided by: AC Commercial RE
Bethany
Adashun Jones, Inc.
Provided by: Score Realty Group, LLC
Adashun Jones, Inc.
Provided by: Score Realty Group, LLC
Adashun Jones, Inc.
Provided by: Century 21 Ace Realty
Adashun Jones, Inc.
Provided by: Coldwell Banker Real Estate Group
Enter your email address and we will send you a link to change your password.