

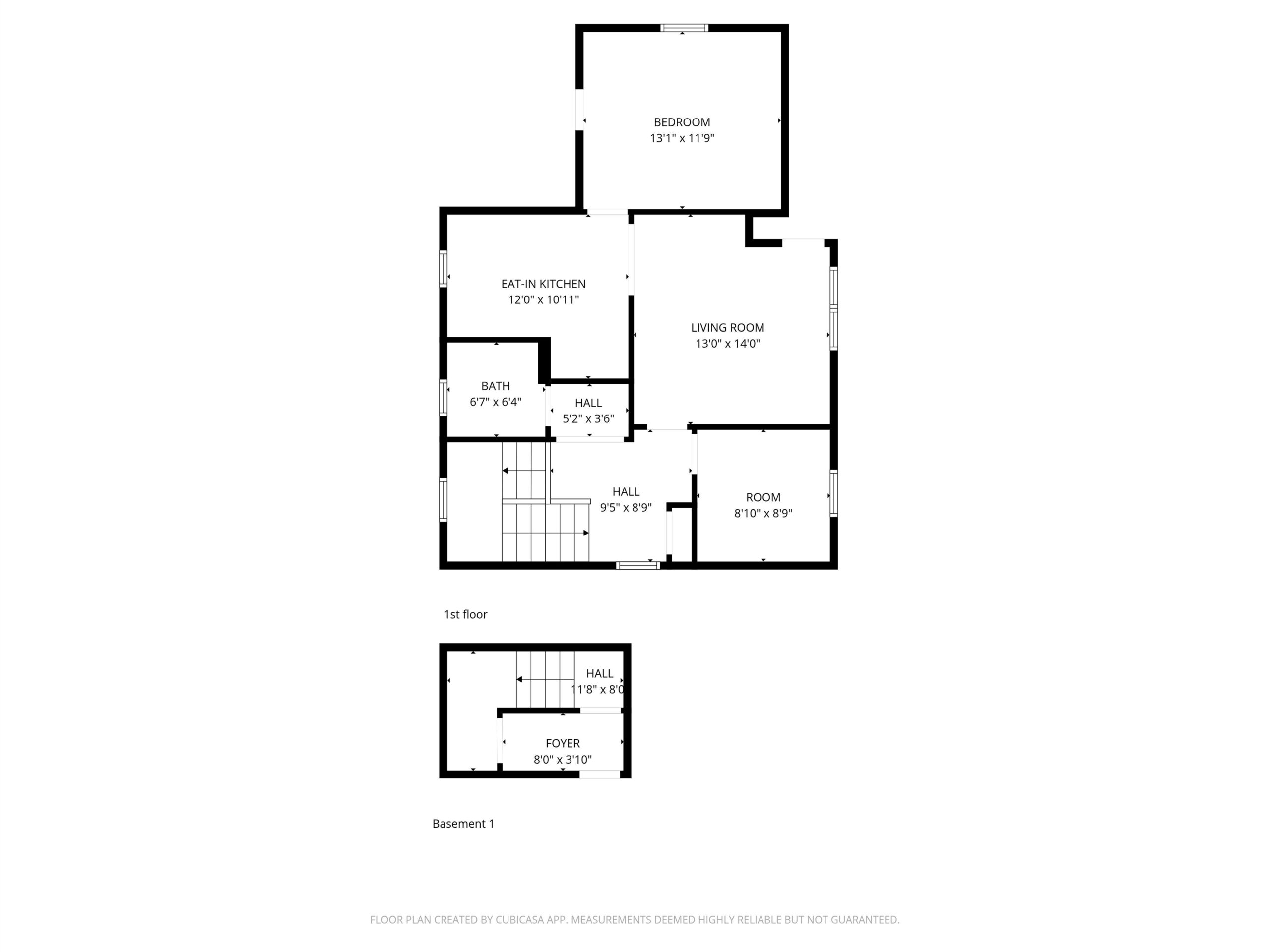
Spacious home on generous .72 acre lot. 2 stall detached garage. Currently configured as a duplex with long-term tenants. Durable metal roof (June 2011) for low maintenance. Extra parking. Home features a 6'x35' enclosed porch with an abundance of natural lighting. Main level includes 2 bed 1bath, 1st floor laundry, eat-in spacious kitchen, formal dining area, dual entrance full bathroom off master bedroom. Upper unit has 2 bedrooms, 1 full bath. Laundry hookups in lower level. This home presents a unique opportunity for owner-occupy / investors or those seeking a large single-family 4+ bedroom residence. Benefit from the existing rental income, or easily convert it back to its original single-family
Inclusions:
2 Oven/Range, 2 refrigerators
Exclusions:
Tenants personal property
Get a detailed Home Value Estimate Based on Current Market Trends/Get a Detailed Estimate Based on Current Market Conditions Impacting Your Home's Value
Adashun Jones, Inc.
Provided by: RE/MAX 24/7 Real Estate, LLC
Adashun Jones, Inc.
Provided by: Keller Williams Fox Cities
Adashun Jones, Inc.
Provided by: LIV Wisconsin Realty
Adashun Jones, Inc.
Provided by: Century 21 Ace Realty
Adashun Jones, Inc.
Provided by: Resource One Realty, LLC
Adashun Jones, Inc.
Provided by: Keller Williams Fox Cities
Adashun Jones, Inc.
Provided by: Weichert, Realtors-Your Home Team
Adashun Jones, Inc.
Provided by: Lambert Realty
Adashun Jones, Inc.
Provided by: Broadway Real Estate
Adashun Jones, Inc.
Provided by: Acre Realty, Ltd.