

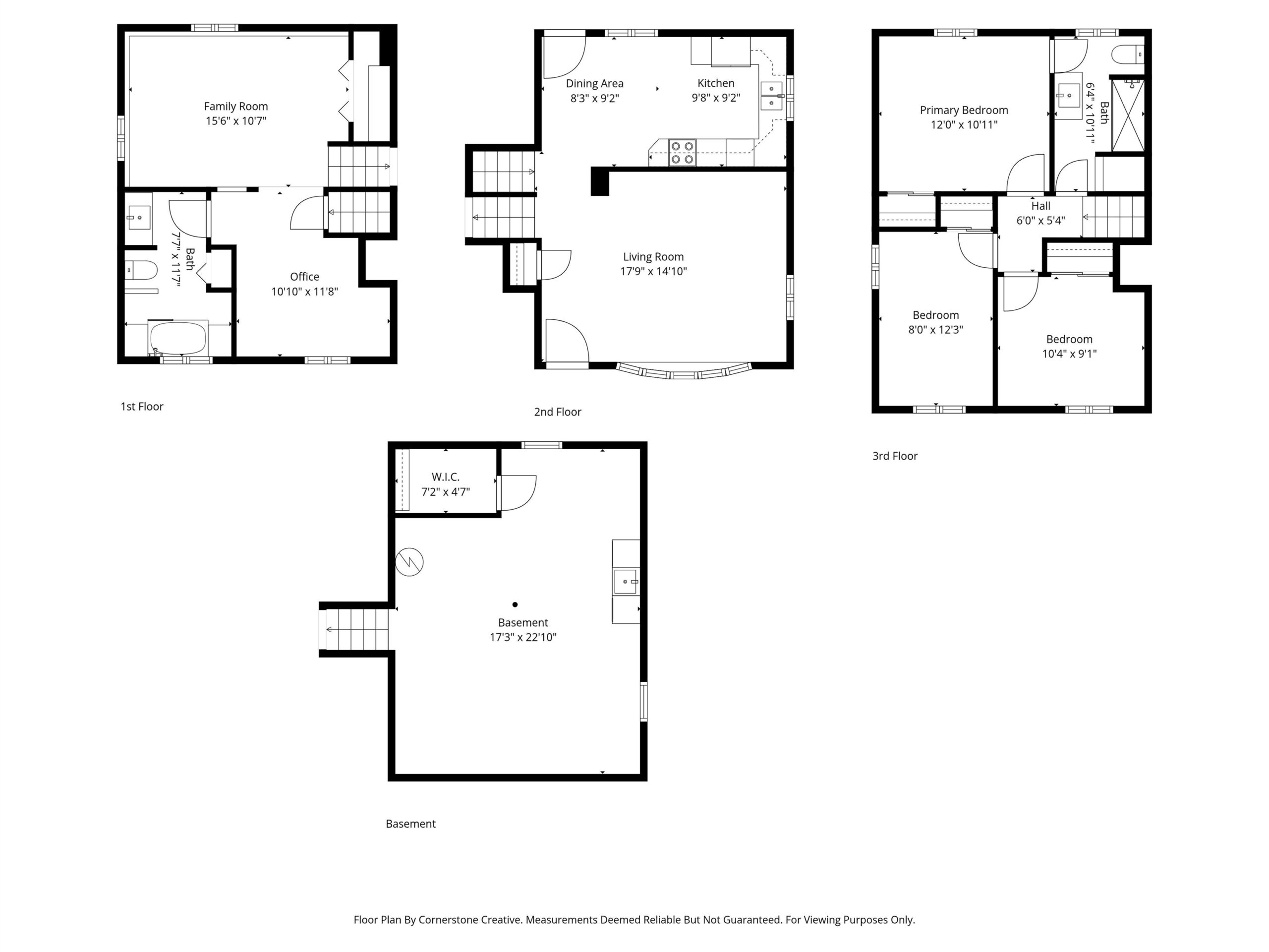
Welcome to 1107 Honeysuckle Ln in Neenah! This well-maintained 3-bedroom, 2-bath home offers 1,884 sq ft of comfortable living space on a .20-acre lot in a convenient location. The bright kitchen and dining area features warm wood cabinetry, generous counter space, and abundant natural light with views of the backyard. The functional layout includes two spacious living areas, 3 spacious bedrooms and closets in each. The two full baths feature practical layouts, including an upgraded walk-in shower and tub. This property includes a detached deep 2-stall garage with a built-in workbench. Spacious backyard & Conveniently located near schools, parks, and shopping. Overall, this home offers a wonderful combination of space, comfort, and everyday convenience. Call or text for a private showing!
Inclusions:
Refrigerator, stove/oven, dishwasher, garbage disposal, washer, and dryer, sauna, and tub.
Exclusions:
Sellers Personal Property
Get a detailed Home Value Estimate Based on Current Market Trends/Get a Detailed Estimate Based on Current Market Conditions Impacting Your Home's Value
Steven
Maureen
Adashun Jones, Inc.
Provided by: Keller Williams Green Bay
Garrett
Adashun Jones, Inc.
Provided by: Coldwell Banker Real Estate Group
Adashun Jones, Inc.
Provided by: Cutler Custom Homes & Real Estate
Adashun Jones, Inc.
Provided by: RE/MAX 24/7 Real Estate, LLC
Adashun Jones, Inc.
Provided by: Best Built, Inc.
Adashun Jones, Inc.
Provided by: Real Broker LLC
Adashun Jones, Inc.
Provided by: Acre Realty, Ltd.