

4
Beds
3
Bath
2,448
Sq. Ft.
Experience lakeside living on Lake Winnebago in this well-maintained home featuring stylish, modern updates throughout. Enjoy the warmth of newly installed flooring that flows seamlessly through the main living areas and lower level, enhancing both comfort and appeal. The home boasts three beautifully updated bathrooms. A bright and inviting three-season room, complete with new windows and fresh flooring, provides the perfect spot to relax and take in the Sunrise along with the peaceful surroundings. Whether you’re entertaining, enjoying the view, or simply unwinding, this home offers the perfect blend of comfort, style, and waterfront charm.
Inclusions:
Stove, Refrig, Washer, Dryer, Water Softener (owned), RO System, TV & Mt in Pr bed, Fr in Garage, Sm Bait Fridge in Garage, Pier, Window treat, Kt Isl
Exclusions:
Sellers personal property
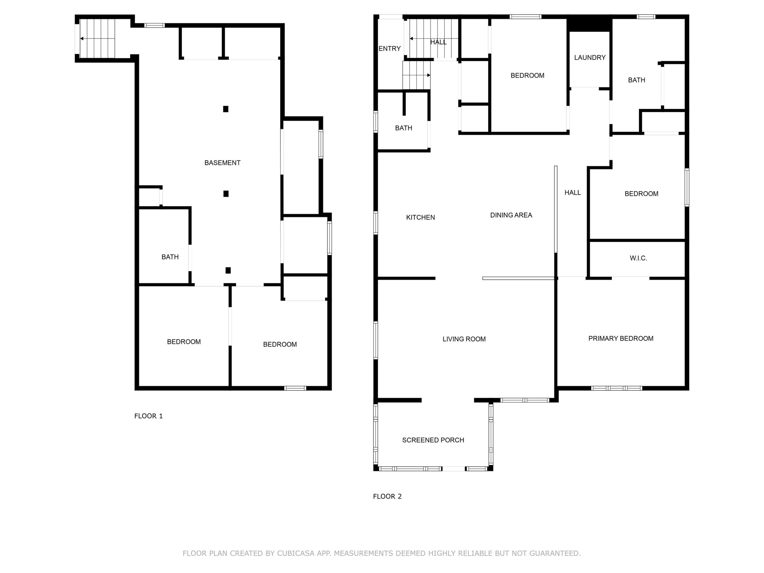
| Room type | Dimensions | Level |
|---|---|---|
| Bedroom 1 | 14x13 | Main |
| Bedroom 2 | 12x10 | Main |
| Bedroom 3 | 13x9 | Main |
| Bedroom 4 | 11x11 | Lower |
| Kitchen | 15x12 | Main |
| Living Room | 22x14 | Main |
| Dining Room | 16x10 | Main |
| Unfinished | 13x8 | Main |
| Other Room | 11x10 | Lower |
| Other Room 2 | 27x17 | Lower |
| Other Room 3 | 7x5 | Main |
Adashun Jones, Inc.
Provided by: Pat’s Realty Inc
Adashun Jones, Inc.
Provided by: Realty Executives Cooper Spransy
Adashun Jones, Inc.
Provided by: Dallaire Realty
Adashun Jones, Inc.
Provided by: Rome Realty LLC
Adashun Jones, Inc.
Provided by: Madcityhomes.Com
Adashun Jones, Inc.
Provided by: Preferred Realty Group
Adashun Jones, Inc.
Provided by: Keller Williams Realty
Adashun Jones, Inc.
Provided by: Kramer Real Estate & Auction L
Adashun Jones, Inc.
Provided by: Berkshire Hathaway HomeServices Matson Real Estate
Adashun Jones, Inc.
Provided by: Broadway Real Estate
Enter your email address and we will send you a link to change your password.