

3
Beds
3
Bath
2,646
Sq. Ft.
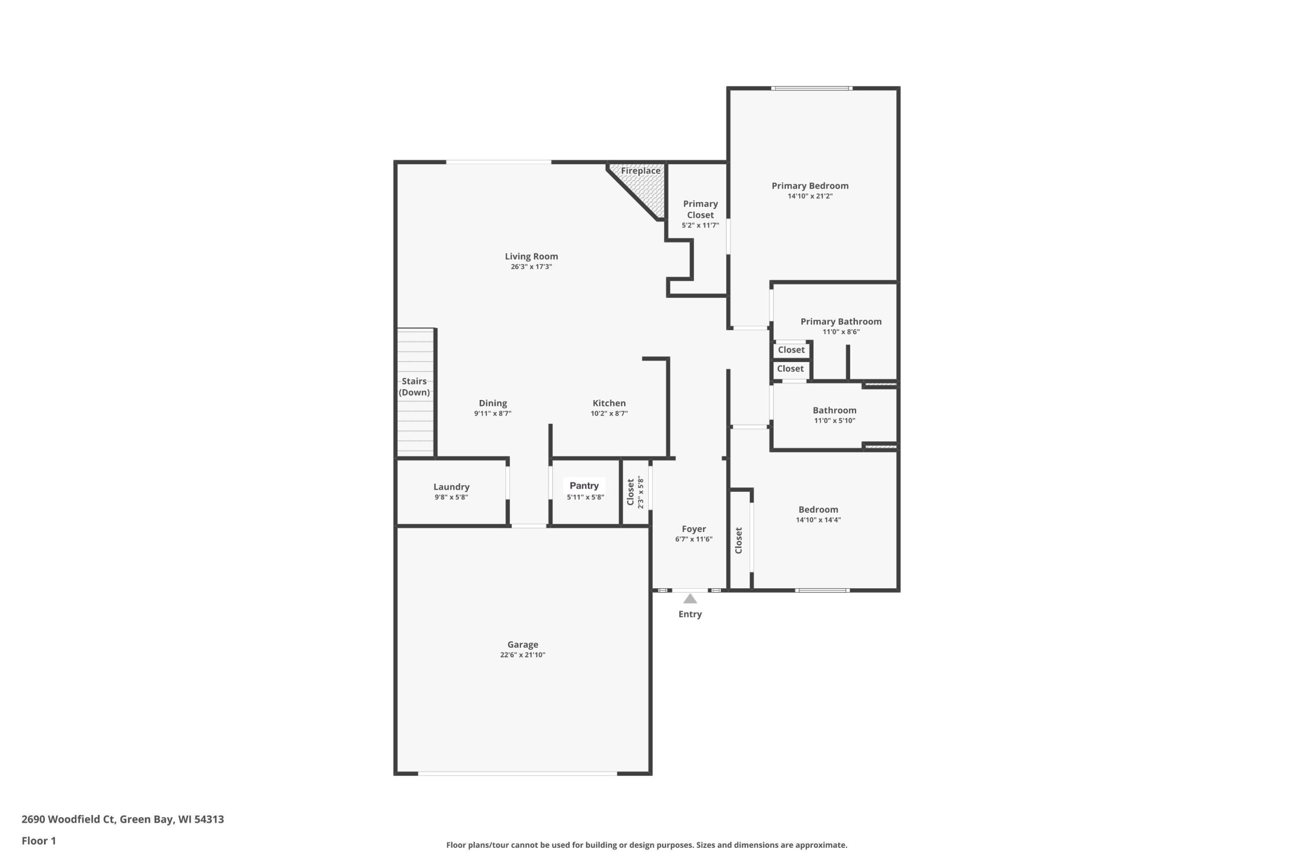
Welcome to Woodfield Village! This 3BR/3BA zero lot-line ranch home within a structured HOA greets w/ traditional foyer, maple paneled doors & soaring cathedral ceilings! LR w/ gas fireplace & sliding door opening to deck & greenspace. Fully-equipped kitchen w/ prep isle, pantry, snack-counter. Dining & kitchen enjoy maple hardwood floor! Spacious primary bedroom w/ vaulted ceiling, walk-in closet, and full en-suite w/ shower! 2nd full bath serves guests & bedroom 2. LL adds over 1,000 sqft composed of a large fam-room, big 3rd bedroom w/ walk-in closet & 3rd full bath. 2-stall attached garage w/ epoxy floor. Central vacuum, WH 2025, furnace+A/C 2020. Immaculate home!
Inclusions:
Oven/Range, Refrigerator, Dishwasher, Microwave, Washer, Dryer, Water Softener, King Bed, Garbage Disposal, Basement Storage Room
Exclusions:
Sellers Personal Items, Piano, (2) Master Bedroom Closet Peg Hooks
| Room type | Dimensions | Level |
|---|---|---|
| Bedroom 1 | 14x16 | Main |
| Bedroom 2 | 12x12 | Main |
| Bedroom 3 | 14x18 | Lower |
| Family Room | 15x24 | Lower |
| Kitchen | 11x12 | Main |
| Living Room | 14x24 | Main |
| Dining Room | 9x12 | Main |
| Other Room | 5x10 | Main |
| Other Room 2 | 7x12 | Main |
Adashun Jones, Inc.
Provided by: Coldwell Banker Real Estate Group
Adashun Jones, Inc.
Provided by: Epique Realty
Adashun Jones, Inc.
Provided by: Keller Williams Green Bay
Adashun Jones, Inc.
Provided by: Best Built, Inc.
Adashun Jones, Inc.
Provided by: Exit Elite Realty
Adashun Jones, Inc.
Provided by: Corbett Realty
Adashun Jones, Inc.
Provided by: Coldwell Banker Real Estate Group
Adashun Jones, Inc.
Provided by: Berkshire Hathaway HS Metro Realty-The Collective
Adashun Jones, Inc.
Provided by: Weichert, Realtors-Your Home Team
Enter your email address and we will send you a link to change your password.